Europriser
  • USD/RUB75.3779
  • GBP/RUB101.7045
  • TRY/RUB1.6742
  • EUR/RUB88.2826
Alanya
+20°C
19.5°C
2285lägenhet På sidan
  • Önskelista
  • Jämföra

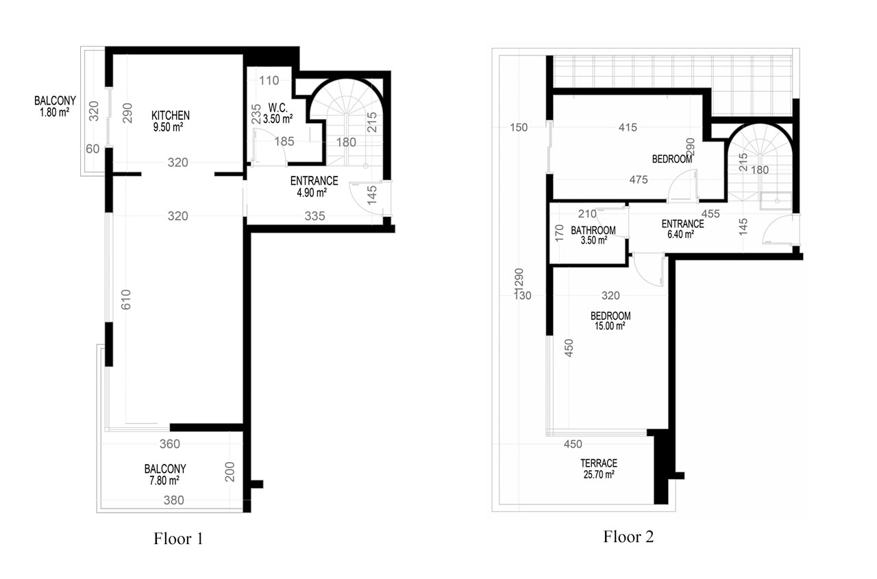
Yekta Blue Residence 2+1 bostadsplan Nr 12 142.70 kvm

Projektfunktioner
Beliggenhet
  • Nära havet
  • Nära Stranden
  • Nära till naturen
  • Nära köpcentrum
  • Nära centrum
  • Nära skolan
  • Nära bussholdeplasser
Apparat
  • Vacker utsikt
  • Redo att flytta in i lägenheter
Beskrivning
Ej Tillgänglig
Begär offert
Lägenheter med denna layout
Utsikt
Liknande layouter
Gratis samråd

Kontakta erfarna chefer

Ali Pazandeh
Försäljningschef, Grafisk designer