Europriser
  • USD/RUB71.1897
  • GBP/RUB95.5177
  • TRY/RUB1.5572
  • EUR/RUB82.5445
Alanya
+19°C
22.2°C
2285lägenhet På sidan
  • Önskelista
  • Jämföra

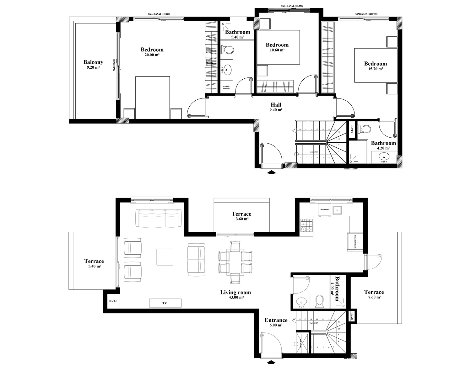
Yekta Blue IV Residence 3+1 bostadsplan Nr Nr 14 180.50 kvm

Projektfunktioner
Övriga faciliteter
  • Utomhuspool
  • Generator
  • Lekplats
  • Barnpool
  • Trädgård
  • Vakt
  • Grillplass
Apparat
  • Ångbad
  • Finsk bastu
  • Uppvärmd inomhuspool
  • Wi - Fi i allmänna utrymmen
  • Utbildning hall
  • Individuellt värmesystem
Beskrivning
Ej Tillgänglig
Begär offert
Lägenheter med denna layout
Utsikt
Gratis samråd

Kontakta erfarna chefer

Ali Pazandeh
Försäljningschef, Grafisk designer