Europriser
  • USD/RUB75.7502
  • GBP/RUB102.3295
  • TRY/RUB1.6764
  • EUR/RUB88.6429
Alanya
+16°C
21°C
2285lägenhet På sidan
  • Önskelista
  • Jämföra

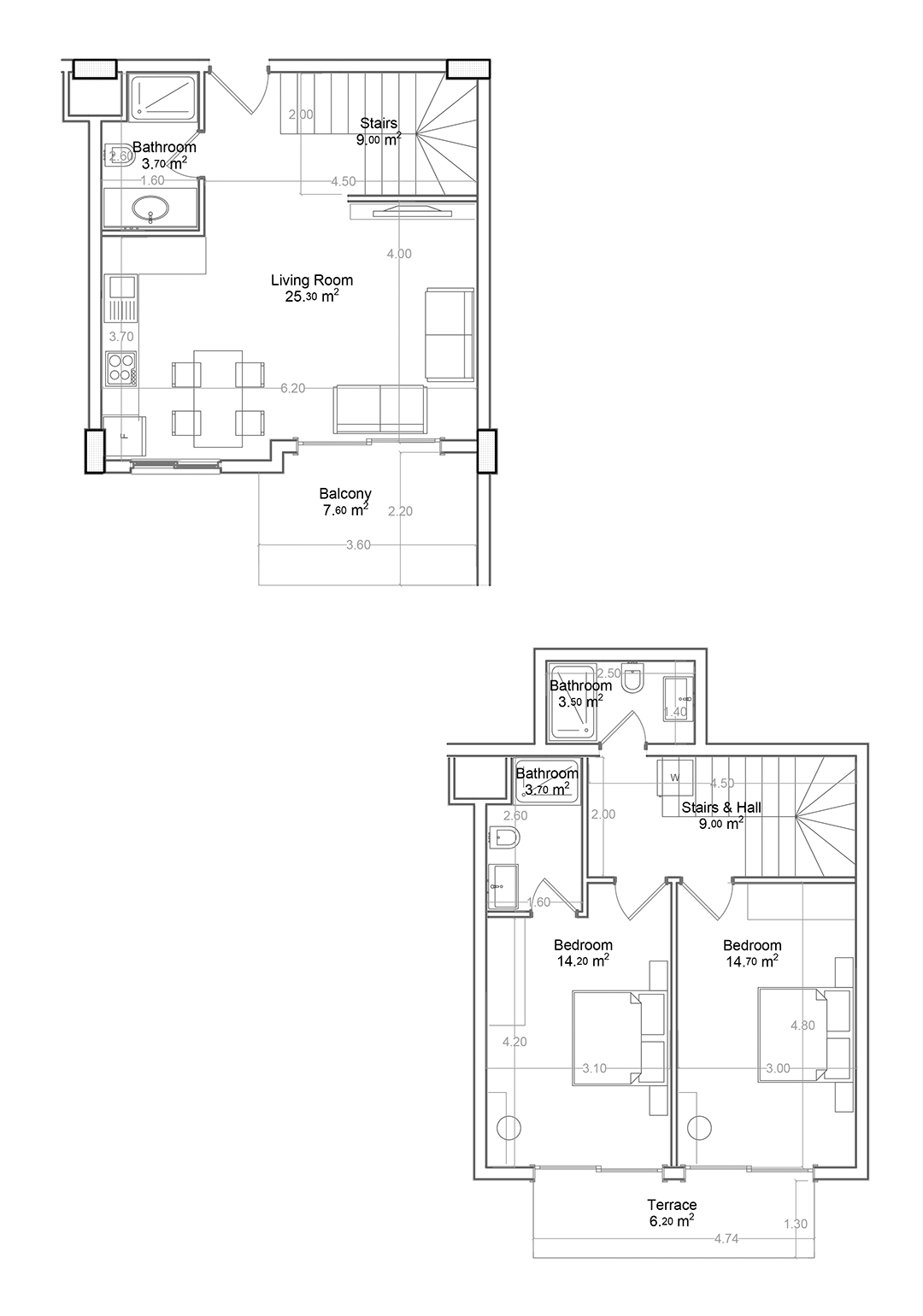
Yekta Green Life Gazipasa Residence C 2+1 bostadsplan Nr 21 108 kvm

Projektfunktioner
Övriga faciliteter
  • Utomhuspool
  • Titta på videor
  • Generator
  • Lekplats
  • Trädgård
  • Omgivet område
  • Gångväg
  • Trädgård design
  • Vattenpark
Apparat
  • Duschkabin
  • Satellit-TV
  • Redo att flytta in i lägenheter
  • Turkiskt bad
  • Ångbad
  • Finsk bastu
  • Uppvärmd inomhuspool
  • Wi - Fi i allmänna utrymmen
  • Utbildning hall
Inomhusanläggningar
  • Rekreationsområde
  • Utbildningsanstalter
Beskrivning
Tillgänglig
Begär offert
Lägenheter med denna layout
Utsikt
Gratis samråd

Kontakta erfarna chefer

Ali Pazandeh
Försäljningschef, Grafisk designer