Europriser
  • USD/RUB75.3779
  • GBP/RUB101.7045
  • TRY/RUB1.6742
  • EUR/RUB88.2826
Alanya
+20°C
18.6°C
2285lägenhet På sidan
  • Önskelista
  • Jämföra

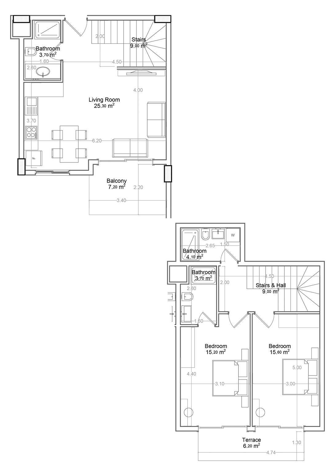
Yekta Green Life Gazipasa Residence B 2+1 Duplex Nr 66 109.70 kvm

Projektfunktioner
Övriga faciliteter
  • Utomhuspool
  • Titta på videor
  • Generator
  • Lekplats
  • Trädgård
  • Omgivet område
  • Gångväg
  • Trädgård design
  • Vattenpark
Apparat
  • Duschkabin
  • Satellit-TV
  • Redo att flytta in i lägenheter
  • Turkiskt bad
  • Ångbad
  • Finsk bastu
  • Uppvärmd inomhuspool
  • Wi - Fi i allmänna utrymmen
  • Utbildning hall
Inomhusanläggningar
  • Rekreationsområde
  • Utbildningsanstalter
Beskrivning
Tillgänglig
Boka
Bokningskostnad, 5% av fastighetspriset
Besök din framtida lägenhet med vår online-turné!
Vi kommer att ordna en digital visningsresa för att visa dig en lägenhet du är intresserad av och utveckling med tillhörande faciliteter där denna lägenhet ligger.
Velge sv leilighet
som passer deg
Fylle ut et digitala tur
bestilling form
Digital visning tur
i en tid som passer deg
Boka online tour
Liknande föremål
Gratis samråd

Kontakta erfarna chefer

Ali Pazandeh
Försäljningschef, Grafisk designer