Euro priser
  • USD/RUB75.6852
  • GBP/RUB102.6953
  • TRY/RUB1.6922
  • EUR/RUB89.2556
Alanya
+17°C
18.1°C
2285leiligheter På side
  • Ønskeliste
  • Sammenlign

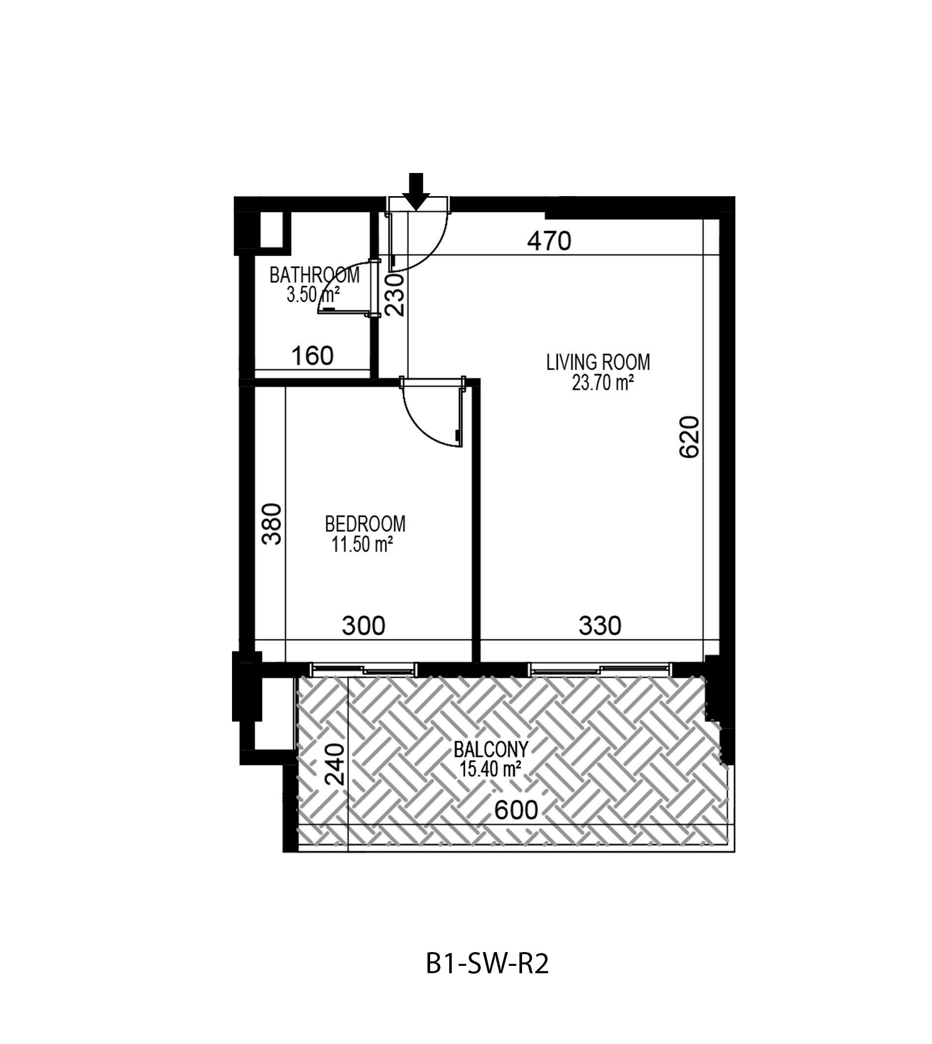
Yekta Alara Park Residence B 1+1 bolig plan Nr №3 70 kvm

Prosjektfunksjoner
Beliggenhet
  • Nærheten til flyplass
  • Nærheten til havet
  • Nær strand
  • Nærhet til naturen
  • Nær shopping mall
  • Nær city center
  • Nær skole
  • Nærheten til havet
  • Nær bussholdeplasser
  • Nærheten til barnehagen
  • Direkte tilgang til stranden
Andre fasiliteter
  • Svømmebasseng
  • Lekeplass for barn
  • Hage
  • Park
  • Gangveier
  • Gym område
  • Enkel transport
  • Enkel transport ut av byen
Apparater
  • Klar til å flytte inn i leiligheter
  • Treningshall
Beskrivelse
Ikke Tilgjengelig
Be om informasjon
Leiligheter med dette oppsettet
Vis
Lignende oppsett
Gratis konsultasjon

Kontakt erfarne ledere

Ali Pazandeh
Salgssjef, Grafisk designer