Euro priser
  • USD/RUB75.6001
  • GBP/RUB102.3202
  • TRY/RUB1.6718
  • EUR/RUB88.3463
Alanya
+17°C
19.9°C
2285leiligheter På side
  • Ønskeliste
  • Sammenlign

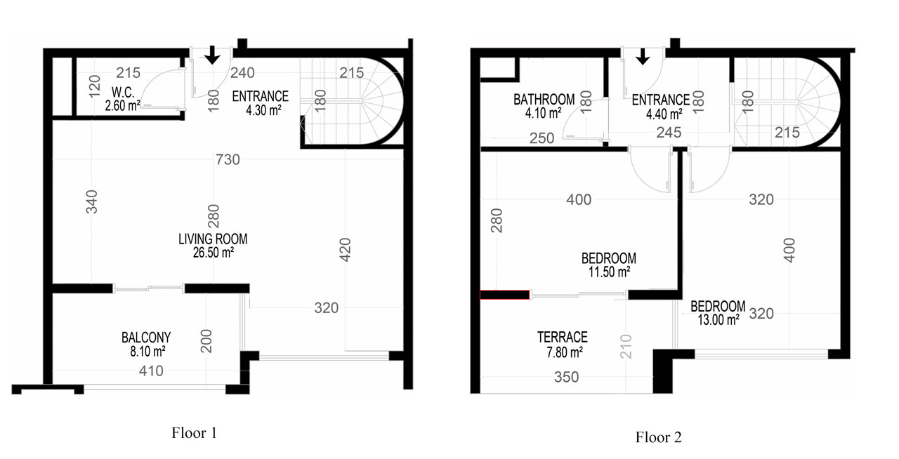
Yekta Blue Residence 2+1 bolig plan Nr Nr 10 106.30 kvm

Prosjektfunksjoner
Beliggenhet
  • Nærheten til havet
  • Nær strand
  • Nærhet til naturen
  • Nær shopping mall
  • Nær city center
  • Nær skole
  • Nær bussholdeplasser
Apparater
  • Vakker utsikt
  • Klar til å flytte inn i leiligheter
Beskrivelse
Ikke Tilgjengelig
Be om informasjon
Leiligheter med dette oppsettet
Vis
Gratis konsultasjon

Kontakt erfarne ledere

Ali Pazandeh
Salgssjef, Grafisk designer