Euro priser
  • USD/RUB75.6852
  • GBP/RUB102.6953
  • TRY/RUB1.6922
  • EUR/RUB89.2556
Alanya
+17°C
18.1°C
2285leiligheter På side
  • Ønskeliste
  • Sammenlign

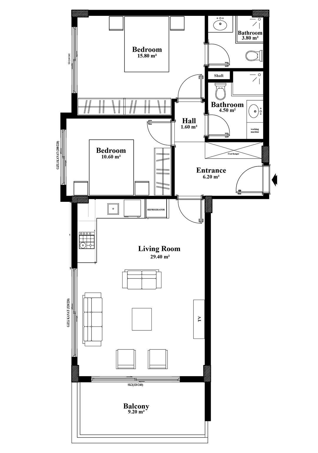
Yekta Blue IV Residence 2+1 Leilighet Nr 47 97.50 kvm

Prosjektfunksjoner
Andre fasiliteter
  • Utendørs svømmebasseng
  • Generator
  • Lekeplass for barn
  • Barne basseng
  • Hage
  • Vakt
  • Grillplass
Apparater
  • Dampbad
  • Finsk badstue
  • Oppvarmet innendørsbasseng
  • Wi-Fi internett-tilgang i fellesområde
  • Treningshall
  • Individuelt varmesystem
Beskrivelse
Ikke Tilgjengelig
Besøk din fremtid leilighet med vår online tour!
Vi vil arrangere en digital visning tur til å vise deg en leilighet du er interessert i, og utvikling med tilhørende anlegg hvor denne leiligheten ligger.
Velge en leilighet
som passer deg
Fylle ut et digital tour
bestilling form
Digital visning tour
i en tid som passer deg
Bestill en online tour
Lignende objekter
Gratis konsultasjon

Kontakt erfarne ledere

Ali Pazandeh
Salgssjef, Grafisk designer