Euro priser
  • USD/RUB75.0364
  • GBP/RUB101.2437
  • TRY/RUB1.6666
  • EUR/RUB87.8826
Alanya
+20°C
19.5°C
2285leiligheter På side
  • Ønskeliste
  • Sammenlign

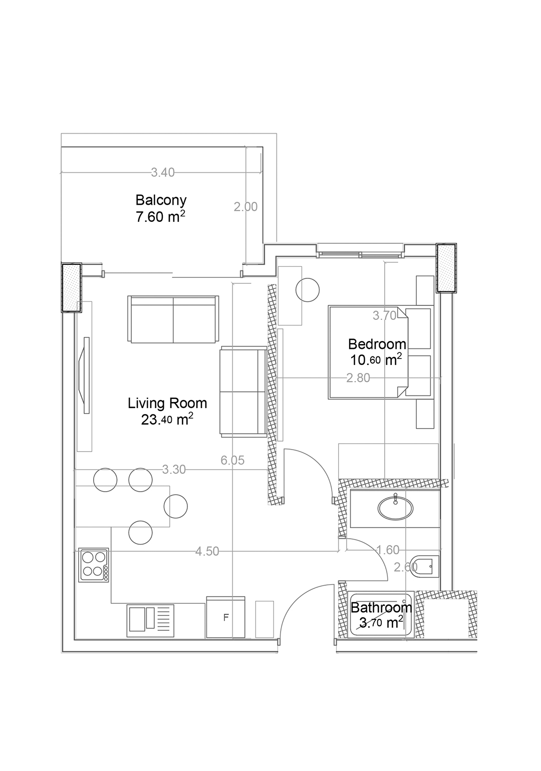
Yekta Green Life Gazipasa Residence B 1+1 bolig plan Nr 18 51.50 kvm

Prosjektfunksjoner
Andre fasiliteter
  • Utendørs svømmebasseng
  • Se på videoer
  • Generator
  • Lekeplass for barn
  • Hage
  • Omgitt område
  • Gangveier
  • Hage design
  • Badeland
Apparater
  • Dusjkabinett
  • Satellitt-TV
  • Klar til å flytte inn i leiligheter
  • Tyrkisk bad
  • Dampbad
  • Finsk badstue
  • Oppvarmet innendørsbasseng
  • Wi-Fi internett-tilgang i fellesområde
  • Treningshall
Innendørs fasiliteter
  • Recreation area
  • Heis
Beskrivelse
Tilgjengelig
Be om informasjon
Gratis konsultasjon

Kontakt erfarne ledere

Ali Pazandeh
Salgssjef, Grafisk designer