Euro priser
  • USD/RUB70.6744
  • GBP/RUB94.717
  • TRY/RUB1.5503
  • EUR/RUB81.9823
Alanya
+19°C
21.5°C
2285leiligheter På side
  • Ønskeliste
  • Sammenlign

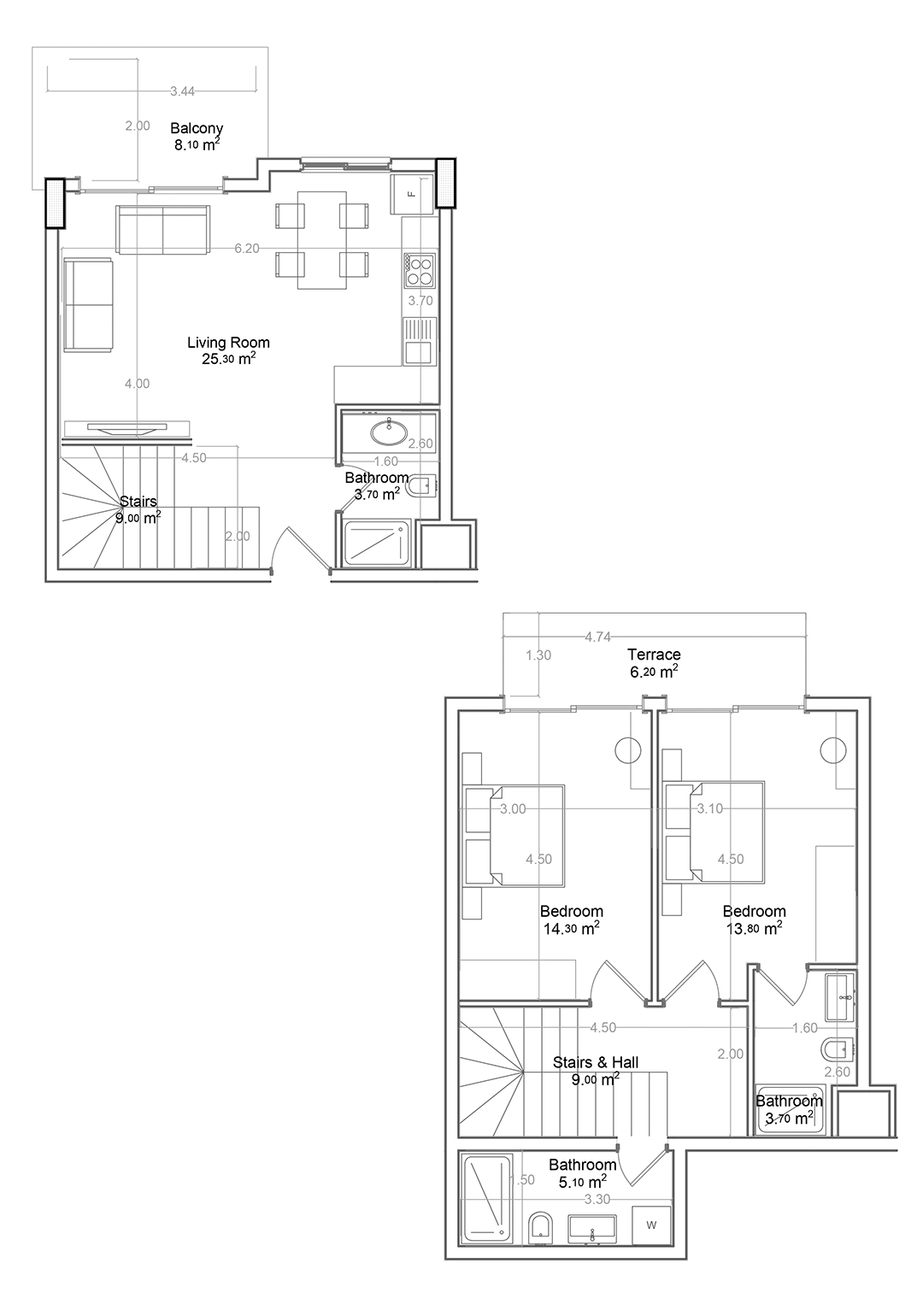
Yekta Green Life Gazipasa Residence B 2+1 Takleilighet Nr 63 110.90 kvm

Prosjektfunksjoner
Andre fasiliteter
  • Utendørs svømmebasseng
  • Se på videoer
  • Generator
  • Lekeplass for barn
  • Hage
  • Omgitt område
  • Gangveier
  • Hage design
  • Badeland
Apparater
  • Dusjkabinett
  • Satellitt-TV
  • Klar til å flytte inn i leiligheter
  • Tyrkisk bad
  • Dampbad
  • Finsk badstue
  • Oppvarmet innendørsbasseng
  • Wi-Fi internett-tilgang i fellesområde
  • Treningshall
Innendørs fasiliteter
  • Recreation area
  • Heis
Beskrivelse
Tilgjengelig
Reserve
Booking kostnad, 5% av eiendomsprisen
Besøk din fremtid leilighet med vår online tour!
Vi vil arrangere en digital visning tur til å vise deg en leilighet du er interessert i, og utvikling med tilhørende anlegg hvor denne leiligheten ligger.
Velge en leilighet
som passer deg
Fylle ut et digital tour
bestilling form
Digital visning tour
i en tid som passer deg
Bestill en online tour
Lignende objekter
Gratis konsultasjon

Kontakt erfarne ledere

Ali Pazandeh
Salgssjef, Grafisk designer