Europriser
  • USD/RUB73.2568
  • GBP/RUB97.8553
  • TRY/RUB1.6084
  • EUR/RUB85.183
Alanya
+19°C
21.2°C
2285lägenhet På sidan
  • Önskelista
  • Jämföra

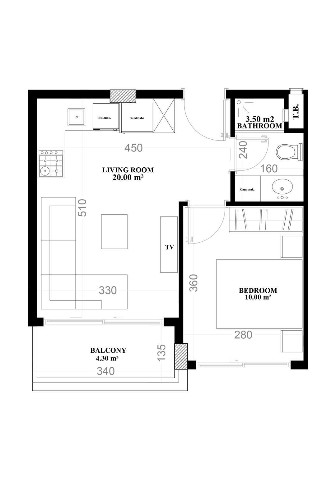
Yekta Blue V Residence C 1+1 bostadsplan Nr Nr 3 45.40 kvm

Projektfunktioner
Övriga faciliteter
  • Inomhuspool
  • Utomhuspool
  • Generator
  • Lekplats
  • Privat parkeringsplats
  • Trädgård
  • Vakt
  • Trädgård design
  • Grillplass
  • Vattenpark
Apparat
  • Turkiskt bad
  • Ångbad
  • Finsk bastu
  • Wi - Fi i allmänna utrymmen
  • Utbildning hall
  • Individuellt värmesystem
Inomhusanläggningar
  • Rekreationsområde
Beskrivning
Tillgänglig
Begär offert
Lägenheter med denna layout
Utsikt
Gratis samråd

Kontakta erfarna chefer

Ali Pazandeh
Försäljningschef, Grafisk designer