Europriser
  • USD/RUB75.6852
  • GBP/RUB102.6953
  • TRY/RUB1.6922
  • EUR/RUB89.2556
Alanya
+17°C
18.1°C
2285lägenhet På sidan
  • Önskelista
  • Jämföra

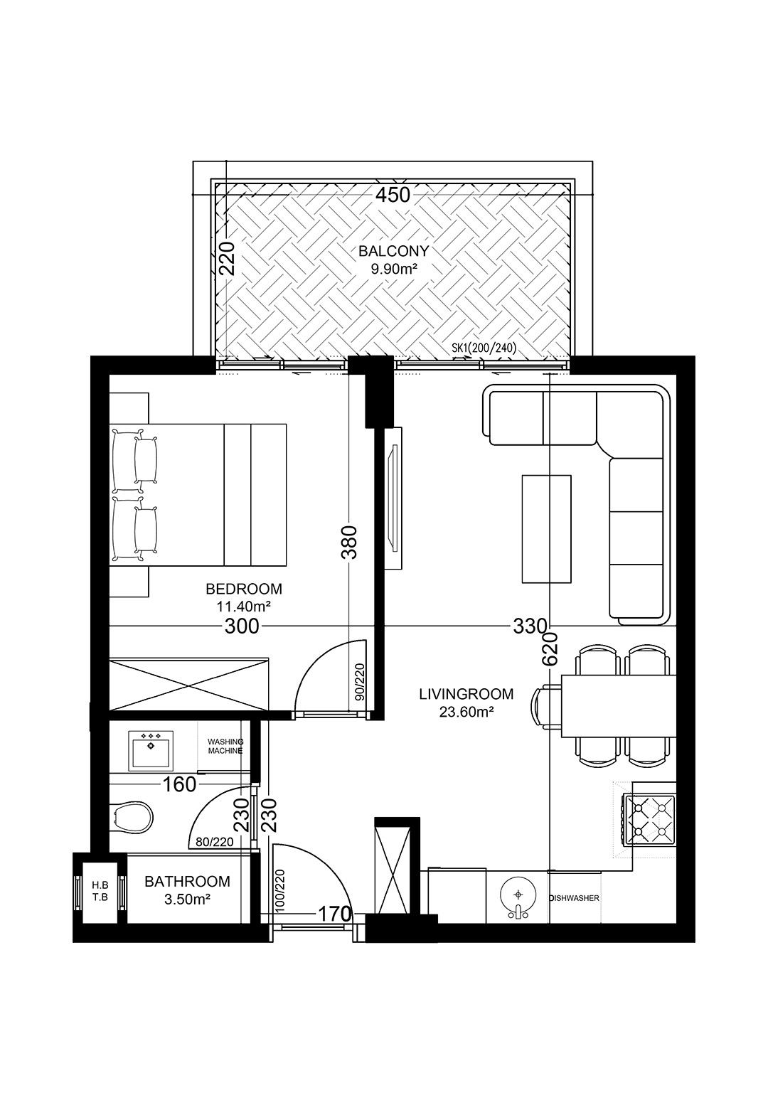
Yekta Golden Valley Residence D 1+1 bostadsplan Nr 12 53.40 kvm

Projektfunktioner
Övriga faciliteter
  • Utomhuspool
  • Titta på videor
  • Trädgård
  • Vakt
  • Grillplass
Apparat
  • Satellit-TV
  • Turkiskt bad
  • Ångbad
  • Finsk bastu
  • Uppvärmd inomhuspool
  • Salt rum
  • Wi - Fi i allmänna utrymmen
  • Utbildning hall
Inomhusanläggningar
  • Rekreationsområde
Beskrivning
Tillgänglig
Begär offert
Lägenheter med denna layout
Utsikt
Gratis samråd

Kontakta erfarna chefer

Ali Pazandeh
Försäljningschef, Grafisk designer