Europriser
  • USD/RUB75.4403
  • GBP/RUB102.2084
  • TRY/RUB1.669
  • EUR/RUB88.2651
Alanya
+14°C
20.1°C
2285lägenhet På sidan
  • Önskelista
  • Jämföra

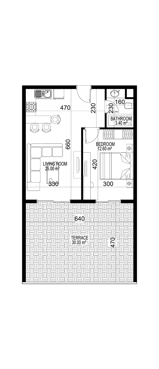
Yekta Kingdom Premium C 1+1 bostadsplan Nr Nr 10 84 kvm

Projektfunktioner
Beliggenhet
  • Nära havet
  • Nära Stranden
  • Nära till naturen
  • Nära köpcentrum
  • Nära centrum
  • Nära skolan
  • Nära havet
  • Nära bussholdeplasser
  • Direkt till stranden
Övriga faciliteter
  • Pool
  • Inomhuspool
  • Utomhuspool
  • Löparbana
  • Kamelia
  • Titta på videor
  • Generator
  • Lekplats
  • Barnpool
  • Privat parkeringsplats
  • Servicefirma
  • Trädgård
  • Omgivet område
  • Vakt
  • Park
  • Gym
  • Enkel transport
  • Enkel transport ut ur staden
  • Trädgård design
  • Trädgård
  • Grillplass
  • Prydnads pool
  • Utomhusbio
  • Vattenpark
  • Tennisbana
  • Minigolfbana
Apparat
  • Gips på taket
  • Chip access-kort
  • Duschkabin
  • Vacker utsikt
  • Möblerat badrum
  • Innerdörr
  • Panoramafönster
  • Golvvärme i badrummet
  • Värme-kabel anslutning
  • Punktbelysning
  • Satellit-TV
  • Dricksvatten filtersystem
  • Redo att flytta in i lägenheter
  • Turkiskt bad
  • Spaavdelning
  • Uppvärmd inomhuspool
  • Vilorum
  • Utbildning hall
  • Bidé WC
Inomhusanläggningar
  • Egen verkstad
  • Vinterträdgård
  • Rekreationsområde
  • Konferense hall
  • Inomhuspool
  • Utbildningsanstalter
  • Bordtennis
  • Rum
Beskrivning
Tillgänglig
Begär offert
Lägenheter med denna layout
Utsikt
Gratis samråd

Kontakta erfarna chefer

Ali Pazandeh
Försäljningschef, Grafisk designer