Euro priser
  • USD/RUB75.6852
  • GBP/RUB102.6953
  • TRY/RUB1.6922
  • EUR/RUB89.2556
Alanya
+17°C
18.1°C
2285leiligheter På side
  • Ønskeliste
  • Sammenlign

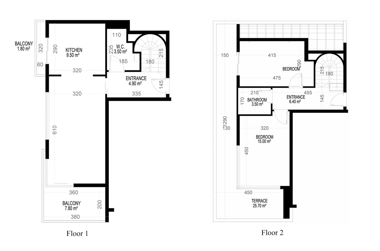
Yekta Blue Residence 2+1 Takleilighet Nr 72 142,70

Prosjektfunksjoner
Beliggenhet
  • Nærheten til flyplass
  • Nærheten til havet
  • Nær strand
  • Nærhet til naturen
  • Nær shopping mall
  • Nær city center
  • Nær skole
  • Nær bussholdeplasser
Andre fasiliteter
  • Lekeplass for barn
  • Gym område
  • Enkel transport
  • Enkel transport ut av byen
Apparater
  • Vakker utsikt
  • Klar til å flytte inn i leiligheter
  • Treningshall
Innendørs fasiliteter
  • Recreation area
Beskrivelse
Ikke Tilgjengelig
Besøk din fremtid leilighet med vår online tour!
Vi vil arrangere en digital visning tur til å vise deg en leilighet du er interessert i, og utvikling med tilhørende anlegg hvor denne leiligheten ligger.
Velge en leilighet
som passer deg
Fylle ut et digital tour
bestilling form
Digital visning tour
i en tid som passer deg
Bestill en online tour
Lignende objekter
Gratis konsultasjon

Kontakt erfarne ledere

Ali Pazandeh
Salgssjef, Grafisk designer