Europriser
  • USD/RUB75.6852
  • GBP/RUB102.6953
  • TRY/RUB1.6922
  • EUR/RUB89.2556
Alanya
+17°C
18.1°C
2285lejlighed På side
  • Ønskeliste
  • Sammenligne

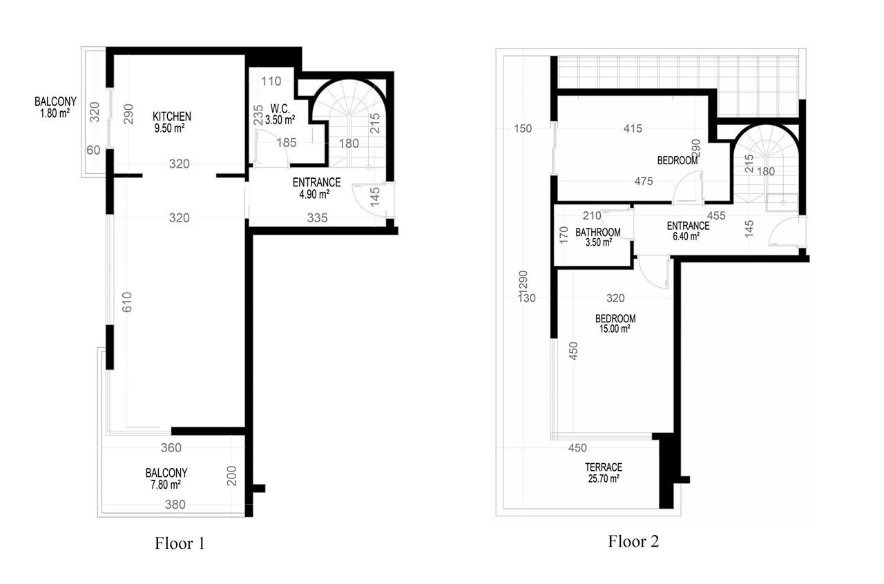
Yekta Blue Residence 2+1 Duplex Nr 72 142,70

Projektegenskaber
Beliggenhed
  • Lufthavnenes nærhed
  • Nær havet
  • Nær Stranden
  • Nærhed til naturen
  • Indkøbscenter i nærheden
  • Nærliggende bycenter
  • Tæt på skolen
  • Nær busstoppesteder
Andre faciliteter
  • Legeplads
  • Fitness område
  • Nem transport
  • Nem transport uden for byen
Apparat
  • Smuk udsigt
  • Klar til at flytte ind i lejligheder
  • træningssal
Indendørs faciliteter
  • Rekreasjonsområde
Beskrivelse
Ikke Tilgængelig
Besøg din fremtidige lejlighed med vores onlinetur!
Vi vil arrangere en digital seertur for at vise dig en lejlighed, du er interesseret i og udvikling med de tilhørende faciliteter, hvor denne lejlighed er placeret.
Velge en leilighet
som passersedeg
Fylle ut et digital tour
bestilling form
Digital viste tour
i en tid som passerger deg
Book en onlinetur
Lignende objekter
Fri høring

Kontakt erfarne ledere

Ali Pazandeh
Salgschef, Grafisk designer