Euro priser
  • USD/RUB74.9847
  • GBP/RUB101.3089
  • TRY/RUB1.6638
  • EUR/RUB87.7771
2285leiligheter På side
  • Ønskeliste
  • Sammenlign

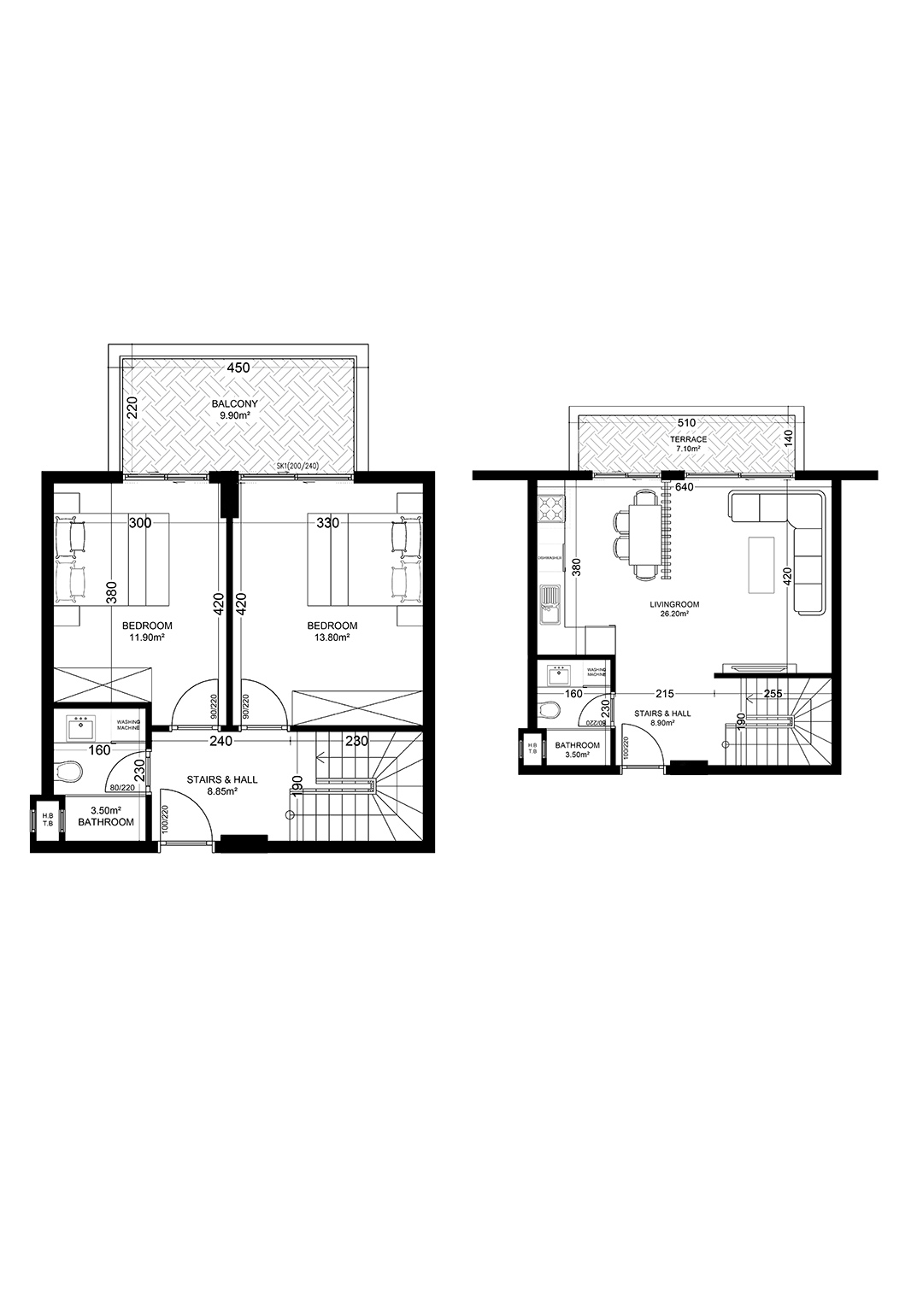
Yekta Golden Valley Residence D 2+1 Takleilighet Nr 28 104 kvm

Prosjektfunksjoner
Andre fasiliteter
  • Utendørs svømmebasseng
  • Se på videoer
  • Hage
  • Vakt
  • Grillplass
Apparater
  • Satellitt-TV
  • Tyrkisk bad
  • Dampbad
  • Finsk badstue
  • Oppvarmet innendørsbasseng
  • Salt rommet
  • Wi-Fi internett-tilgang i fellesområde
  • Treningshall
Innendørs fasiliteter
  • Recreation area
Beskrivelse
Tilgjengelig
Reserve
Booking kostnad, 5% av eiendomsprisen
Besøk din fremtid leilighet med vår online tour!
Vi vil arrangere en digital visning tur til å vise deg en leilighet du er interessert i, og utvikling med tilhørende anlegg hvor denne leiligheten ligger.
Velge en leilighet
som passer deg
Fylle ut et digital tour
bestilling form
Digital visning tour
i en tid som passer deg
Bestill en online tour
Lignende objekter
Gratis konsultasjon

Kontakt erfarne ledere

Ali Pazandeh
Salgssjef, Grafisk designer