نرخ یورو
  • USD/RUB75.3779
  • GBP/RUB101.7045
  • TRY/RUB1.6742
  • EUR/RUB88.2826
آلانیا
+20°C
19.5°C
2285آپارتمان در سایت
  • لیست علاقه مندی ها
  • مقایسه کنید

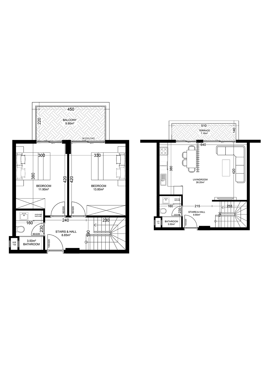
Yekta Golden Valley Residence D
Duplex №28 104 m2 2+1

امکانات مجتمع
امکانات محوطه خارجی مجموعه
  • Outdoor pool
  • نظارت تصویری
  • باغ
  • سیستم امنیتی
  • محوطه باربیکیو
امکانات دیگر
  • تلویزیون ماهواره ای
  • حمام ترکی
  • سونا بخار رومی
  • سونا فنلاندی (سونا خشک)
  • استخر سرپوشیده
  • اتاق درمانی نمک
  • اینترنت وای فای در مشاعات مجتمع
  • سالن ورزش
امکانات فضای داخلی مجموعه
  • منطقه استراحت
گزینه ها
  • نام پروژه:
  • بلوک پروژه:
    D
  • اتاق ها:
    2+1
  • مساحت:
    104 m²
  • طبقه:
    4
  • شماره آپارتمان:
    28
در دسترس
رزرو
هزینه رزرو - 5٪ از قیمت ملک
با تور آنلاین ما از آپارتمان آینده خود دیدن کنید!
در زمان مناسب برای شما ، یک تور ویدئویی آنلاین از آپارتمان مورد نظرتان، از داخل آپارتمان و محوطه برگزار خواهیم کرد. ما به تمام سوالات شما پاسخ خواهیم داد.
آپارتمانی را انتخاب کنید که مناسب شما باشد
فرم رزرو تور آنلاین را تکمیل کنید
یک آپارتمان را بصورت آنلاین بررسی کنید که مناسب شما باشد.
یک تور آنلاین رزرو کنید
موارد مشابه
مشاوره رایگان

درخواست مشاوره با مدیران با تجربه

علی پازنده
طراح گرافیک,مدیر فروش