Europriser
  • USD/RUB75.7502
  • GBP/RUB102.3295
  • TRY/RUB1.6764
  • EUR/RUB88.6429
Alanya
+16°C
21°C
2285lägenhet På sidan
  • Önskelista
  • Jämföra

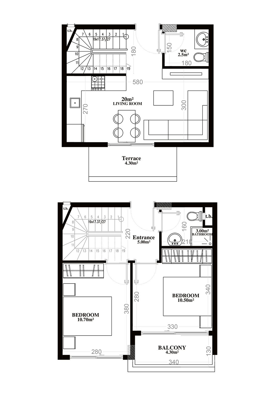
Yekta Blue V Residence «C» 2+1 bostadsplan Nr 6 79.10 kvm

Projektfunktioner
Övriga faciliteter
  • Inomhuspool
  • Utomhuspool
  • Generator
  • Lekplats
  • Privat parkeringsplats
  • Trädgård
  • Vakt
  • Trädgård design
  • Grillplass
  • Vattenpark
Apparat
  • Turkiskt bad
  • Ångbad
  • Finsk bastu
  • Wi - Fi i allmänna utrymmen
  • Utbildning hall
  • Individuellt värmesystem
Inomhusanläggningar
  • Rekreationsområde
Beskrivning
Tillgänglig
Begär offert
Lägenheter med denna layout
Utsikt
Gratis samråd

Kontakta erfarna chefer

Ali Pazandeh
Försäljningschef, Grafisk designer