Euro-Sätze
  • USD/RUB74.8001
  • GBP/RUB101.5045
  • TRY/RUB1.662
  • EUR/RUB87.8826
Alanya
+20°C
19.5°C
2285wohnungen on site
  • Wunschzettel
  • Vergleich

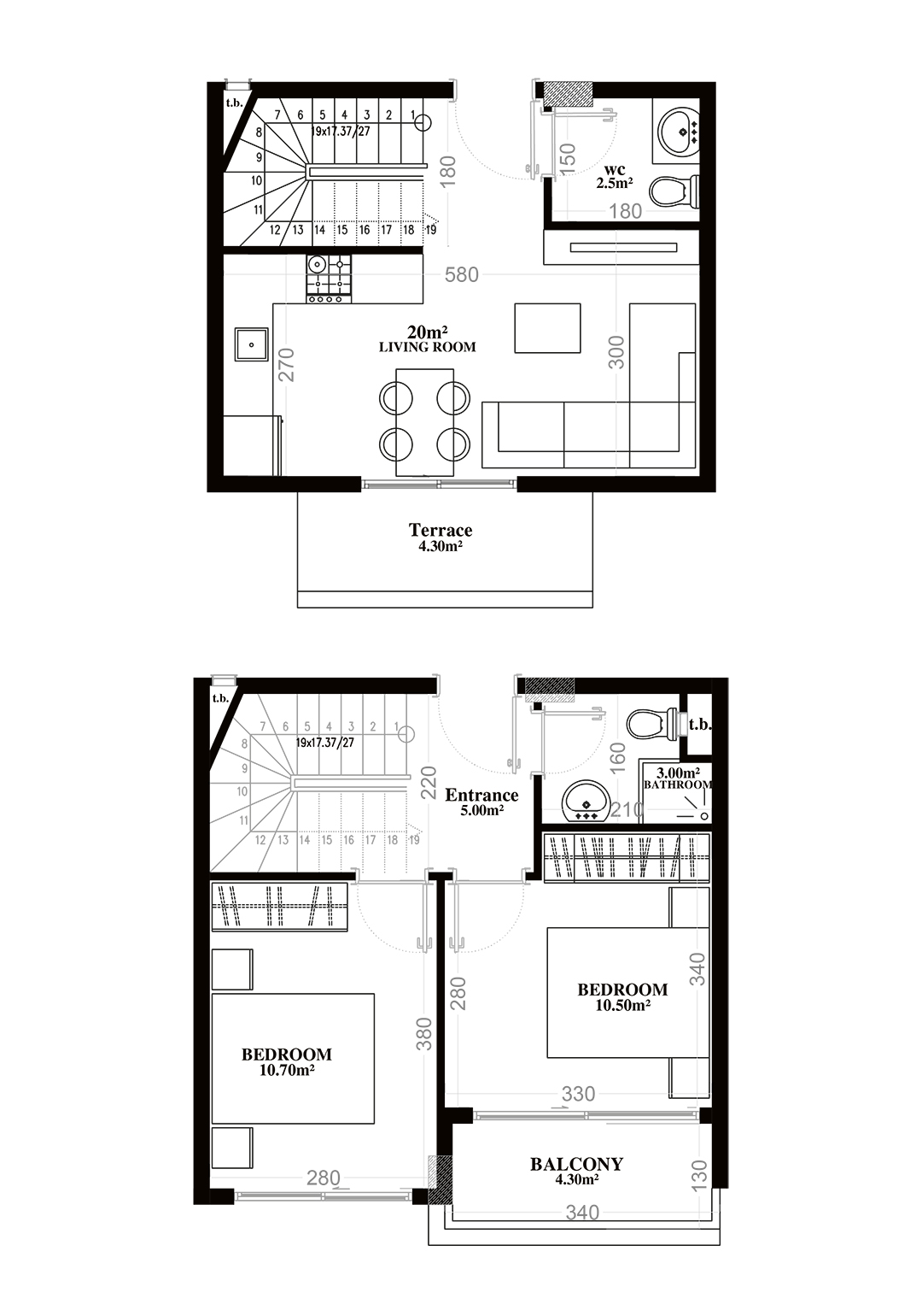
Yekta Blue V Residence «C» 2+1 Home Plan Nr. 6 79.10 m2

Eigenschaften
Andere Einrichtungen
  • Indoor pool
  • Outdoor pool
  • Generator
  • Kinderspielplatz
  • Privater Parkplatz
  • Garten
  • Sicherheit
  • Landschaftsdesign
  • Grill Platz
  • Wasserpark
Haushaltsgeräte
  • turkich Hamam
  • Dampfbad
  • Finnische Sauna
  • WLAN…internet ist in der Unterkunft verfügbar.
  • Fitness Center
  • Vorbereitung einer eigene Heizungs anlage
Komplexe Einrichtungen
  • Erholungsgebiet
Parameter
Verfügbar
Anfragedetails
Apartments mit dieser Planung
Kostenlose Beratung

Fordern Sie ein Beratungsgespräch mit den erfahrenen Managern an

ALI PAZANDEH
Verkaufsleiter, Grafikdesigner