Euro priser
  • USD/RUB75.7502
  • GBP/RUB102.3295
  • TRY/RUB1.6764
  • EUR/RUB88.6429
Alanya
+16°C
21°C
2285leiligheter På side
  • Ønskeliste
  • Sammenlign

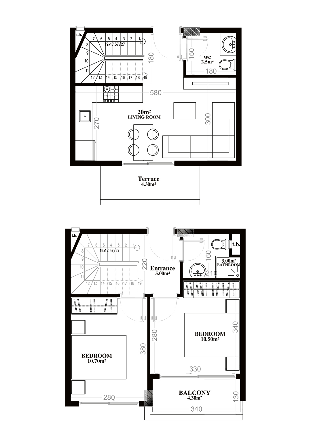
Yekta Blue V Residence «C» 2+1 bolig plan Nr 6 79.10 kvm

Prosjektfunksjoner
Andre fasiliteter
  • Innendørs svømmebasseng
  • Utendørs svømmebasseng
  • Generator
  • Lekeplass for barn
  • Privat parkering plass
  • Hage
  • Vakt
  • Hage design
  • Grillplass
  • Badeland
Apparater
  • Tyrkisk bad
  • Dampbad
  • Finsk badstue
  • Wi-Fi internett-tilgang i fellesområde
  • Treningshall
  • Individuelt varmesystem
Innendørs fasiliteter
  • Recreation area
Beskrivelse
Tilgjengelig
Be om informasjon
Leiligheter med dette oppsettet
Vis
Gratis konsultasjon

Kontakt erfarne ledere

Ali Pazandeh
Salgssjef, Grafisk designer