Europriser
  • USD/RUB74.8001
  • GBP/RUB101.5045
  • TRY/RUB1.662
  • EUR/RUB87.8826
Alanya
+19°C
19.5°C
2285lejlighed På side
  • Ønskeliste
  • Sammenligne

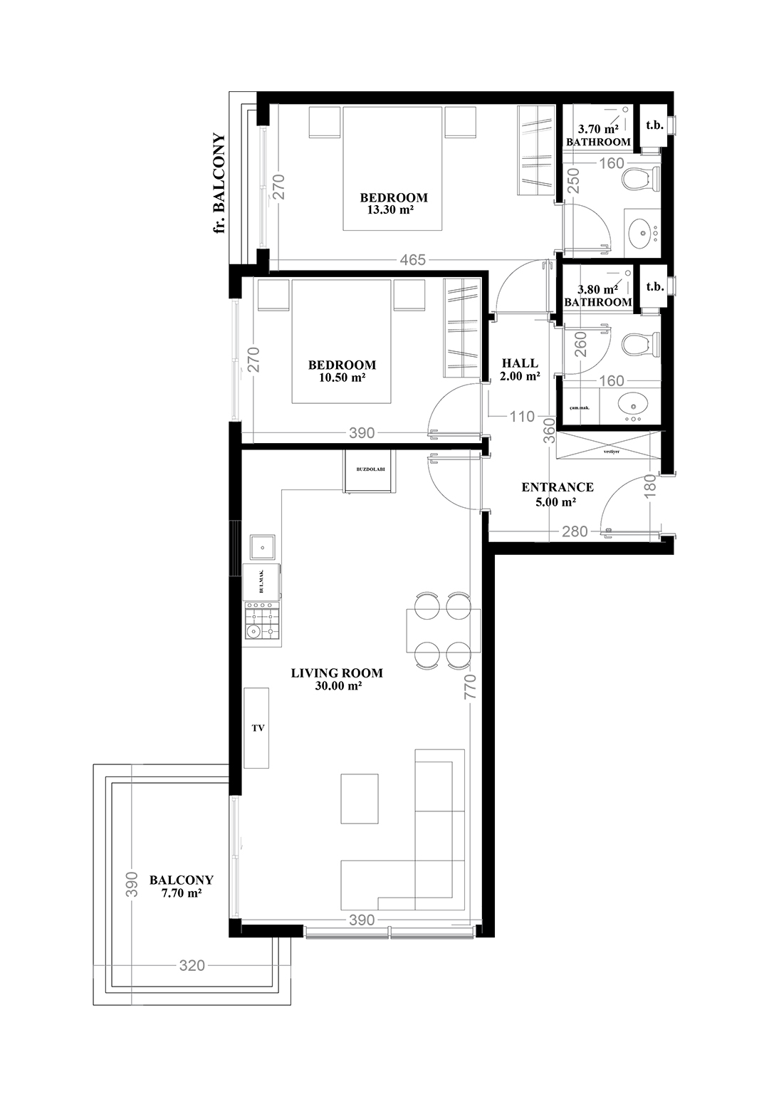
Yekta Blue V Residence A 2+1 Lejlighed Nr 48 91.40 kvm

Projektegenskaber
Andre faciliteter
  • Indendørsswimmingpool
  • Udendørsswimmingpool
  • Generator
  • Legeplads
  • Privat parkeringsplads
  • Have
  • Vagt
  • Havedesign
  • Grillplass
  • Vandland
Apparat
  • Tyrkisk bad
  • Dampbad
  • Finsk sauna
  • Internetadgang i det offentlige område
  • træningssal
  • Individuelt varmesystem
Indendørs faciliteter
  • Rekreasjonsområde
Beskrivelse
Ikke Tilgængelig
Besøg din fremtidige lejlighed med vores onlinetur!
Vi vil arrangere en digital seertur for at vise dig en lejlighed, du er interesseret i og udvikling med de tilhørende faciliteter, hvor denne lejlighed er placeret.
Velge en leilighet
som passersedeg
Fylle ut et digital tour
bestilling form
Digital viste tour
i en tid som passerger deg
Book en onlinetur
Lignende objekter
Fri høring

Kontakt erfarne ledere

Ali Pazandeh
Salgschef, Grafisk designer