Europriser
  • USD/RUB75.7502
  • GBP/RUB102.3295
  • TRY/RUB1.6764
  • EUR/RUB88.6429
Alanya
+15°C
20.8°C
2285lejlighed På side
  • Ønskeliste
  • Sammenligne

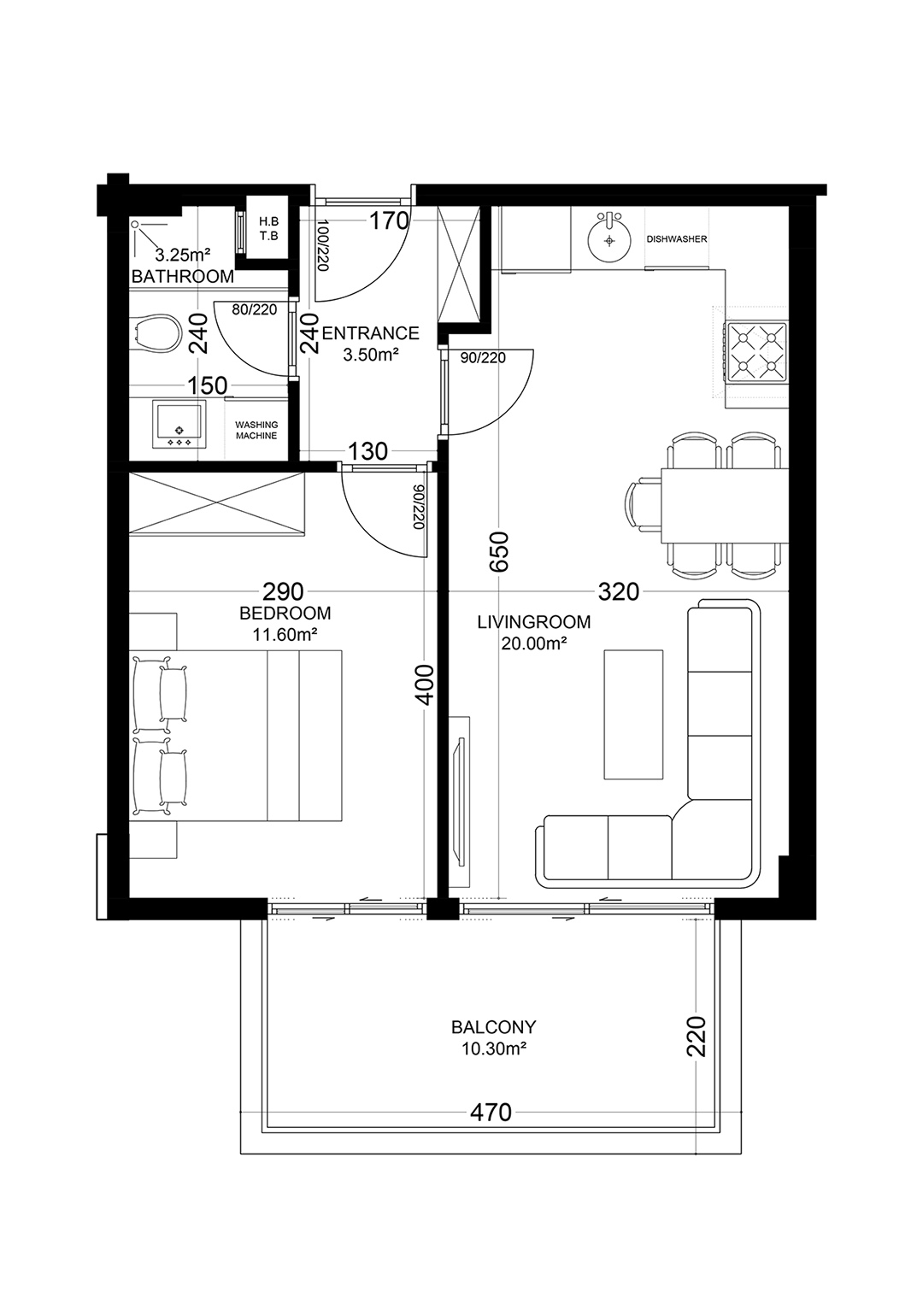
Yekta Golden Valley Residence A 1+1 boligplan Nr 1 54.30 kvm

Projektegenskaber
Andre faciliteter
  • Udendørsswimmingpool
  • Se videoer
  • Have
  • Vagt
  • Grillplass
Apparat
  • Satellit-TV
  • Tyrkisk bad
  • Dampbad
  • Finsk sauna
  • Opvarmet indendørs pool
  • Saltrum
  • Internetadgang i det offentlige område
  • træningssal
Indendørs faciliteter
  • Rekreasjonsområde
Beskrivelse
Tilgængelig
Anmoder om oplysninger
Lejligheder med dette layout
Udsigt
Fri høring

Kontakt erfarne ledere

Ali Pazandeh
Salgschef, Grafisk designer