Europriser
  • USD/RUB74.8001
  • GBP/RUB101.5045
  • TRY/RUB1.662
  • EUR/RUB87.8826
Alanya
+19°C
19.5°C
2285lejlighed På side
  • Ønskeliste
  • Sammenligne

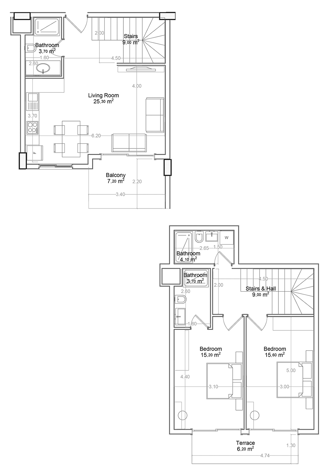
Yekta Green Life Gazipasa Residence B 2+1 Duplex Nr 71 109.80 kvm

Projektegenskaber
Andre faciliteter
  • Udendørsswimmingpool
  • Se videoer
  • Generator
  • Legeplads
  • Have
  • Omringet område
  • Fortov
  • Havedesign
  • Vandland
Apparat
  • Brusekabine
  • Satellit-TV
  • Klar til at flytte ind i lejligheder
  • Tyrkisk bad
  • Dampbad
  • Finsk sauna
  • Opvarmet indendørs pool
  • Internetadgang i det offentlige område
  • træningssal
Indendørs faciliteter
  • Rekreasjonsområde
  • Abcenter
Beskrivelse
Tilgængelig
Book
Bookingomkostninger: 5% af ejendomsprisen
Besøg din fremtidige lejlighed med vores onlinetur!
Vi vil arrangere en digital seertur for at vise dig en lejlighed, du er interesseret i og udvikling med de tilhørende faciliteter, hvor denne lejlighed er placeret.
Velge en leilighet
som passersedeg
Fylle ut et digital tour
bestilling form
Digital viste tour
i en tid som passerger deg
Book en onlinetur
Lignende objekter
Fri høring

Kontakt erfarne ledere

Ali Pazandeh
Salgschef, Grafisk designer