Europriser
  • USD/RUB75.6001
  • GBP/RUB102.3202
  • TRY/RUB1.6718
  • EUR/RUB88.3463
Alanya
+17°C
19.9°C
2285lejlighed På side
  • Ønskeliste
  • Sammenligne

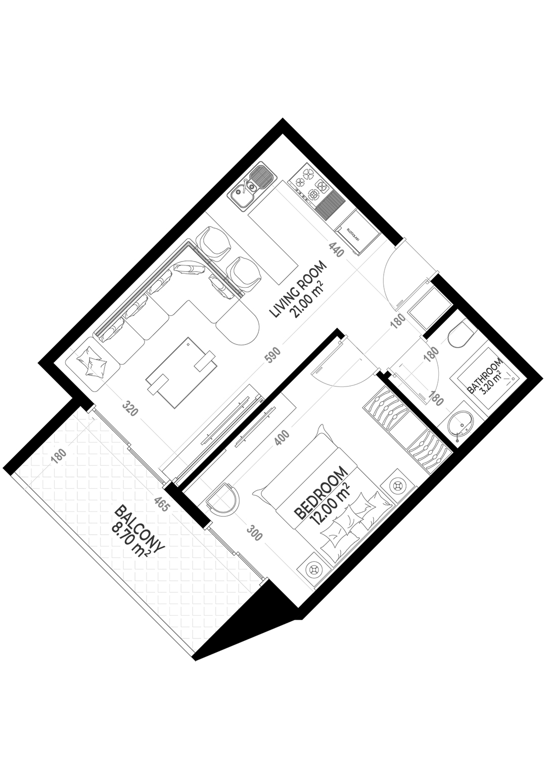
Yekta Sunrise Residence 1+1 boligplan Nr Nr 8 55 kvm

Projektegenskaber
Andre faciliteter
  • Indendørsswimmingpool
  • Udendørsswimmingpool
  • Camellia
  • Generator
  • Legeplads
  • Have
  • Vagt
  • Havedesign
  • Hageanlegg
  • Vandland
Apparat
  • Tyrkisk bad
  • Dampbad
  • Finsk sauna
  • Opvarmet indendørs pool
  • Saltrum
  • Internetadgang i det offentlige område
  • træningssal
  • Individuelt varmesystem
Beskrivelse
Ikke Tilgængelig
Anmoder om oplysninger
Lignende layouts
Fri høring

Kontakt erfarne ledere

Ali Pazandeh
Salgschef, Grafisk designer