Europriser
  • USD/RUB75.6852
  • GBP/RUB102.6953
  • TRY/RUB1.6922
  • EUR/RUB89.2556
Alanya
+17°C
18.1°C
2285lejlighed På side
  • Ønskeliste
  • Sammenligne

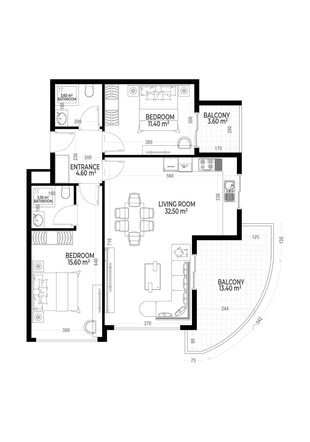
Yekta Sunrise Residence 2+1 Lejlighed Nr 75 103.50 kvm

Projektegenskaber
Andre faciliteter
  • Indendørsswimmingpool
  • Udendørsswimmingpool
  • Camellia
  • Generator
  • Legeplads
  • Have
  • Vagt
  • Havedesign
  • Hageanlegg
  • Vandland
Apparat
  • Tyrkisk bad
  • Dampbad
  • Finsk sauna
  • Opvarmet indendørs pool
  • Saltrum
  • Internetadgang i det offentlige område
  • træningssal
  • Individuelt varmesystem
Beskrivelse
Ikke Tilgængelig
Besøg din fremtidige lejlighed med vores onlinetur!
Vi vil arrangere en digital seertur for at vise dig en lejlighed, du er interesseret i og udvikling med de tilhørende faciliteter, hvor denne lejlighed er placeret.
Velge en leilighet
som passersedeg
Fylle ut et digital tour
bestilling form
Digital viste tour
i en tid som passerger deg
Book en onlinetur
Lignende objekter
Fri høring

Kontakt erfarne ledere

Ali Pazandeh
Salgschef, Grafisk designer