Europriser
  • USD/RUB70.6744
  • GBP/RUB94.717
  • TRY/RUB1.5503
  • EUR/RUB81.9823
Alanya
+19°C
21.5°C
2285lejlighed På side
  • Ønskeliste
  • Sammenligne

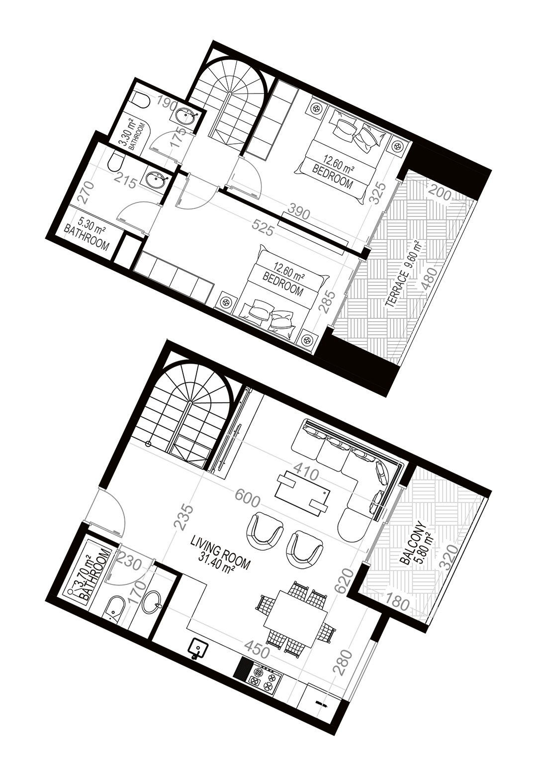
Yekta Sungate Residence 2+1 boligplan Nr Nr 17 107.90 kvm

Projektegenskaber
Andre faciliteter
  • Udendørsswimmingpool
  • Se videoer
  • Generator
  • Legeplads
  • Have
  • Vagt
  • Grillplass
Apparat
  • Satellit-TV
  • Tyrkisk bad
  • Dampbad
  • Finsk sauna
  • Saltrum
  • Internetadgang i det offentlige område
  • træningssal
  • Individuelt varmesystem
Indendørs faciliteter
  • Rekreasjonsområde
Beskrivelse
Ikke Tilgængelig
Anmoder om oplysninger
Lejligheder med dette layout
Udsigt
Fri høring

Kontakt erfarne ledere

Ali Pazandeh
Salgschef, Grafisk designer