Europriser
  • USD/RUB70.6744
  • GBP/RUB94.717
  • TRY/RUB1.5503
  • EUR/RUB81.9823
Alanya
+19°C
21.5°C
2285lejlighed På side
  • Ønskeliste
  • Sammenligne

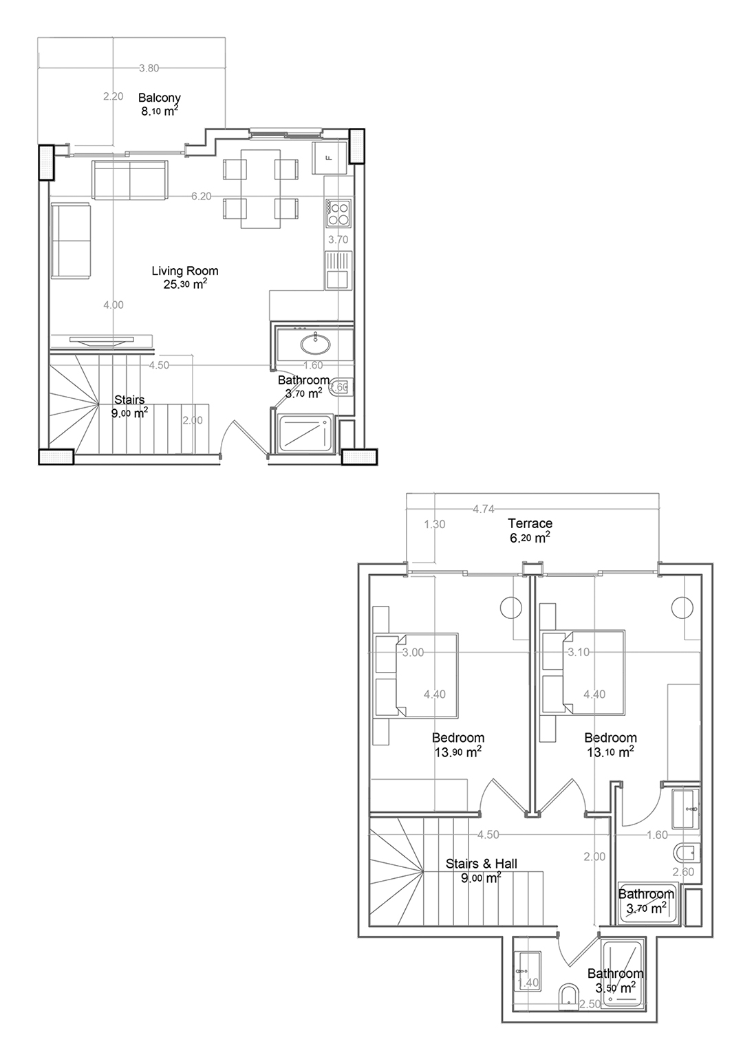
Yekta Green Life Gazipasa Residence C 2+1 boligplan Nr Nr 19 107.90 kvm

Projektegenskaber
Andre faciliteter
  • Udendørsswimmingpool
  • Se videoer
  • Generator
  • Legeplads
  • Have
  • Omringet område
  • Fortov
  • Havedesign
  • Vandland
Apparat
  • Brusekabine
  • Satellit-TV
  • Klar til at flytte ind i lejligheder
  • Tyrkisk bad
  • Dampbad
  • Finsk sauna
  • Opvarmet indendørs pool
  • Internetadgang i det offentlige område
  • træningssal
Indendørs faciliteter
  • Rekreasjonsområde
  • Abcenter
Beskrivelse
Tilgængelig
Anmoder om oplysninger
Lejligheder med dette layout
Udsigt
Fri høring

Kontakt erfarne ledere

Ali Pazandeh
Salgschef, Grafisk designer