Euro rates
  • USD/RUB75.6001
  • GBP/RUB102.3202
  • TRY/RUB1.6718
  • EUR/RUB88.3463
Alanya
+17°C
19.9°C
2285apartments on site
  • Wishlist
  • Compare

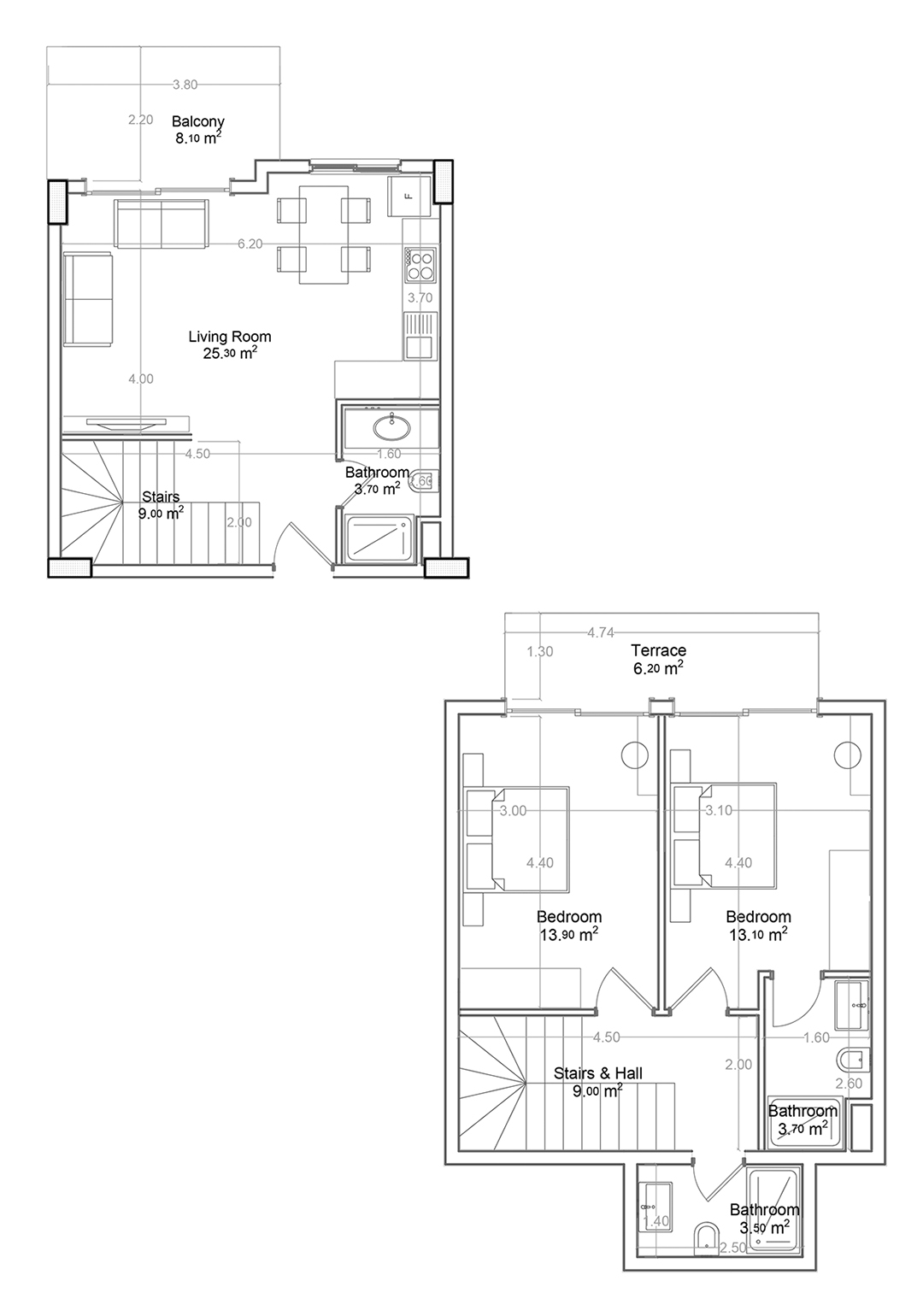
Floor plan of duplex 2+1, Building C in Yekta Green Life Gazipasa Residence No. 19

Details
Other facilities
  • Outdoor pool
  • Video surveillance
  • Generator
  • Kids playground
  • Garden
  • Walled and gated community
  • Footpaths
  • Garden design
  • Waterpark
Features
  • Shower cabin
  • Satellite TV
  • Ready to move in apartments
  • Turkish bath
  • Steam room
  • Finnish sauna
  • Heated indoor swimming pool
  • Wi-Fi internet access in common area
  • Fitness center
Indoor amenities
  • Recreation area
  • Elevator
Description
Available
Request details
Apartments with this layout
Show
Free consultation

Schedule a consultation with our real estate experts

Ali Pazandeh
Sales representative, Graphic designer