نرخ یورو
  • USD/RUB71.1897
  • GBP/RUB95.5177
  • TRY/RUB1.5572
  • EUR/RUB82.5445
آلانیا
+20°C
22.2°C
2285آپارتمان در سایت
  • لیست علاقه مندی ها
  • مقایسه کنید

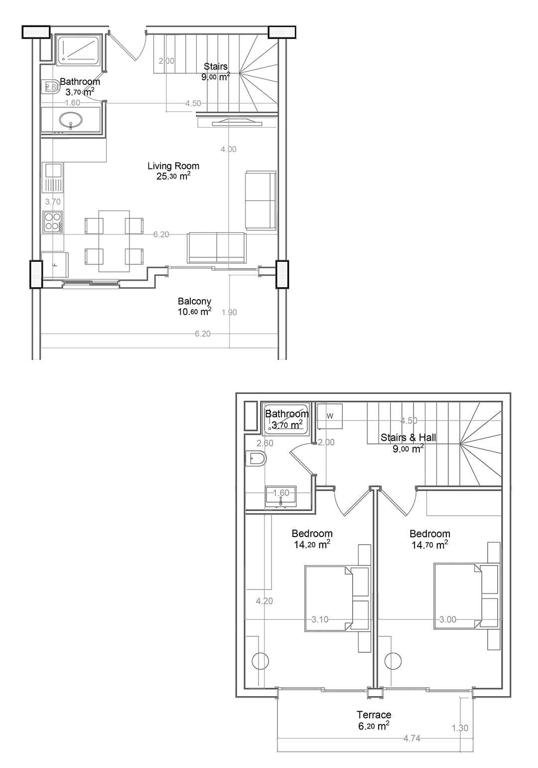
Yekta Green Life Gazipasa Residence C
Layout №23 2+1 101.80 m2

امکانات مجتمع
امکانات محوطه خارجی مجموعه
  • Outdoor pool
  • نظارت تصویری
  • ژنراتور
  • زمین بازی کودکان
  • باغ
  • دارای دیوار و درب ورودی
  • مسیر های پیاده روی
  • طراحی باغ
  • پارک آبی
امکانات دیگر
  • کابین دوش
  • تلویزیون ماهواره ای
  • پایان عالی
  • حمام ترکی
  • سونا بخار رومی
  • سونا فنلاندی (سونا خشک)
  • استخر سرپوشیده
  • اینترنت وای فای در مشاعات مجتمع
  • سالن ورزش
امکانات فضای داخلی مجموعه
  • منطقه استراحت
  • آسانسور
گزینه ها
در دسترس
درخواست جزئیات بیشتر
آپارتمان با این برنامه ریزی
مشاوره رایگان

درخواست مشاوره با مدیران با تجربه

علی پازنده
طراح گرافیک,مدیر فروش