نرخ یورو
  • USD/RUB74.8001
  • GBP/RUB101.5045
  • TRY/RUB1.662
  • EUR/RUB87.8826
آلانیا
+19°C
19.5°C
2285آپارتمان در سایت
  • لیست علاقه مندی ها
  • مقایسه کنید

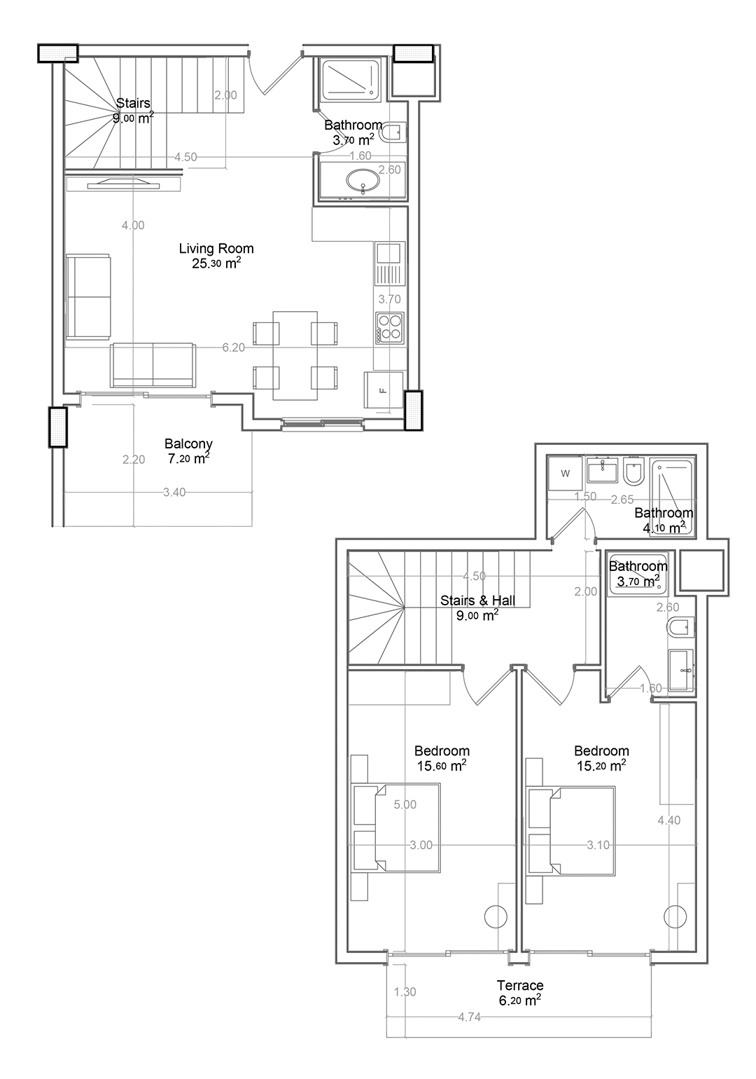
Yekta Green Life Gazipasa Residence B
Duplex №67 109.80 m2 2+1

امکانات مجتمع
امکانات محوطه خارجی مجموعه
  • Outdoor pool
  • نظارت تصویری
  • ژنراتور
  • زمین بازی کودکان
  • باغ
  • دارای دیوار و درب ورودی
  • مسیر های پیاده روی
  • طراحی باغ
  • پارک آبی
امکانات دیگر
  • کابین دوش
  • تلویزیون ماهواره ای
  • پایان عالی
  • حمام ترکی
  • سونا بخار رومی
  • سونا فنلاندی (سونا خشک)
  • استخر سرپوشیده
  • اینترنت وای فای در مشاعات مجتمع
  • سالن ورزش
امکانات فضای داخلی مجموعه
  • منطقه استراحت
  • آسانسور
گزینه ها
در دسترس
رزرو
هزینه رزرو - 5٪ از قیمت ملک
با تور آنلاین ما از آپارتمان آینده خود دیدن کنید!
در زمان مناسب برای شما ، یک تور ویدئویی آنلاین از آپارتمان مورد نظرتان، از داخل آپارتمان و محوطه برگزار خواهیم کرد. ما به تمام سوالات شما پاسخ خواهیم داد.
آپارتمانی را انتخاب کنید که مناسب شما باشد
فرم رزرو تور آنلاین را تکمیل کنید
یک آپارتمان را بصورت آنلاین بررسی کنید که مناسب شما باشد.
یک تور آنلاین رزرو کنید
موارد مشابه
مشاوره رایگان

درخواست مشاوره با مدیران با تجربه

علی پازنده
طراح گرافیک,مدیر فروش