نرخ یورو
  • USD/RUB74.9847
  • GBP/RUB101.3089
  • TRY/RUB1.6638
  • EUR/RUB87.7771
آلانیا
+20°C
20°C
2285آپارتمان در سایت
  • لیست علاقه مندی ها
  • مقایسه کنید

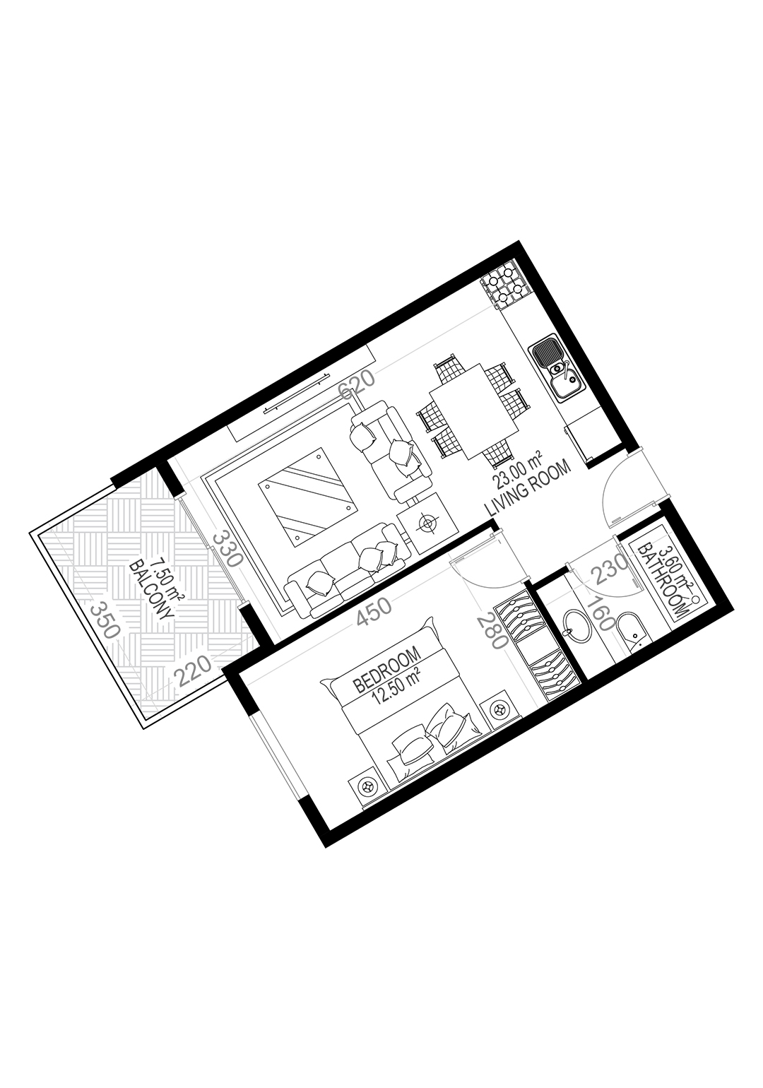
Yekta Sungate Residence
Apartment №124 52 m2 1+1

امکانات مجتمع
امکانات محوطه خارجی مجموعه
  • Outdoor pool
  • نظارت تصویری
  • ژنراتور
  • زمین بازی کودکان
  • باغ
  • سیستم امنیتی
  • محوطه باربیکیو
امکانات دیگر
  • تلویزیون ماهواره ای
  • حمام ترکی
  • سونا بخار رومی
  • سونا فنلاندی (سونا خشک)
  • اتاق درمانی نمک
  • اینترنت وای فای در مشاعات مجتمع
  • سالن ورزش
  • سیستم گرمایشی مستقل برای هر واحد
امکانات فضای داخلی مجموعه
  • منطقه استراحت
گزینه ها
  • نام پروژه:
  • اتاق ها:
    1+1
  • مساحت:
    52 m²
  • طبقه:
    9
  • شماره آپارتمان:
    124
خارج از دسترس
با تور آنلاین ما از آپارتمان آینده خود دیدن کنید!
در زمان مناسب برای شما ، یک تور ویدئویی آنلاین از آپارتمان مورد نظرتان، از داخل آپارتمان و محوطه برگزار خواهیم کرد. ما به تمام سوالات شما پاسخ خواهیم داد.
آپارتمانی را انتخاب کنید که مناسب شما باشد
فرم رزرو تور آنلاین را تکمیل کنید
یک آپارتمان را بصورت آنلاین بررسی کنید که مناسب شما باشد.
یک تور آنلاین رزرو کنید
موارد مشابه
مشاوره رایگان

درخواست مشاوره با مدیران با تجربه

علی پازنده
طراح گرافیک,مدیر فروش