Euro rates
  • USD/RUB74.8682
  • GBP/RUB101.9567
  • TRY/RUB1.6555
  • EUR/RUB88.06
Alanya
+20°C
19.9°C
2285apartments on site
  • Wishlist
  • Compare

1+1 Apartment for sale in Building C, Yekta Green Life Gazipasa Residence, Gazipasa, Turkey No. 33

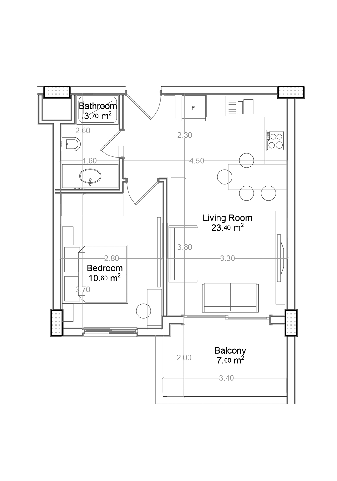
Details
Other facilities
  • Outdoor pool
  • Video surveillance
  • Generator
  • Kids playground
  • Garden
  • Walled and gated community
  • Footpaths
  • Garden design
  • Waterpark
Features
  • Shower cabin
  • Satellite TV
  • Ready to move in apartments
  • Turkish bath
  • Steam room
  • Finnish sauna
  • Heated indoor swimming pool
  • Wi-Fi internet access in common area
  • Fitness center
Indoor amenities
  • Recreation area
  • Elevator
Description
Available
Book
Booking cost – 5% of the property price
Visit your future apartment with our online tour!
We will arrange an online inspection tour to show you an apartment you are interested in and the development with its facilities where this apartment is located.
Choose an apartment
that suits you
Fill out an online tour
booking form
Inspect an apartment online
at a time that suits you
Book an online tour
Similar objects
Free consultation

Schedule a consultation with our real estate experts

Ali Pazandeh
Sales representative, Graphic designer